L'entreprise de construction offrent des services diversifiés, incluant la planification avant construction, la gestion de projet, ainsi que des services de conception et d'architecture.
Notre équipe vous accompagne dans le suivi technique, administratif et financier de vos chantiers, garantissant la qualité, les délais et la conformité de vos projets immobiliers.
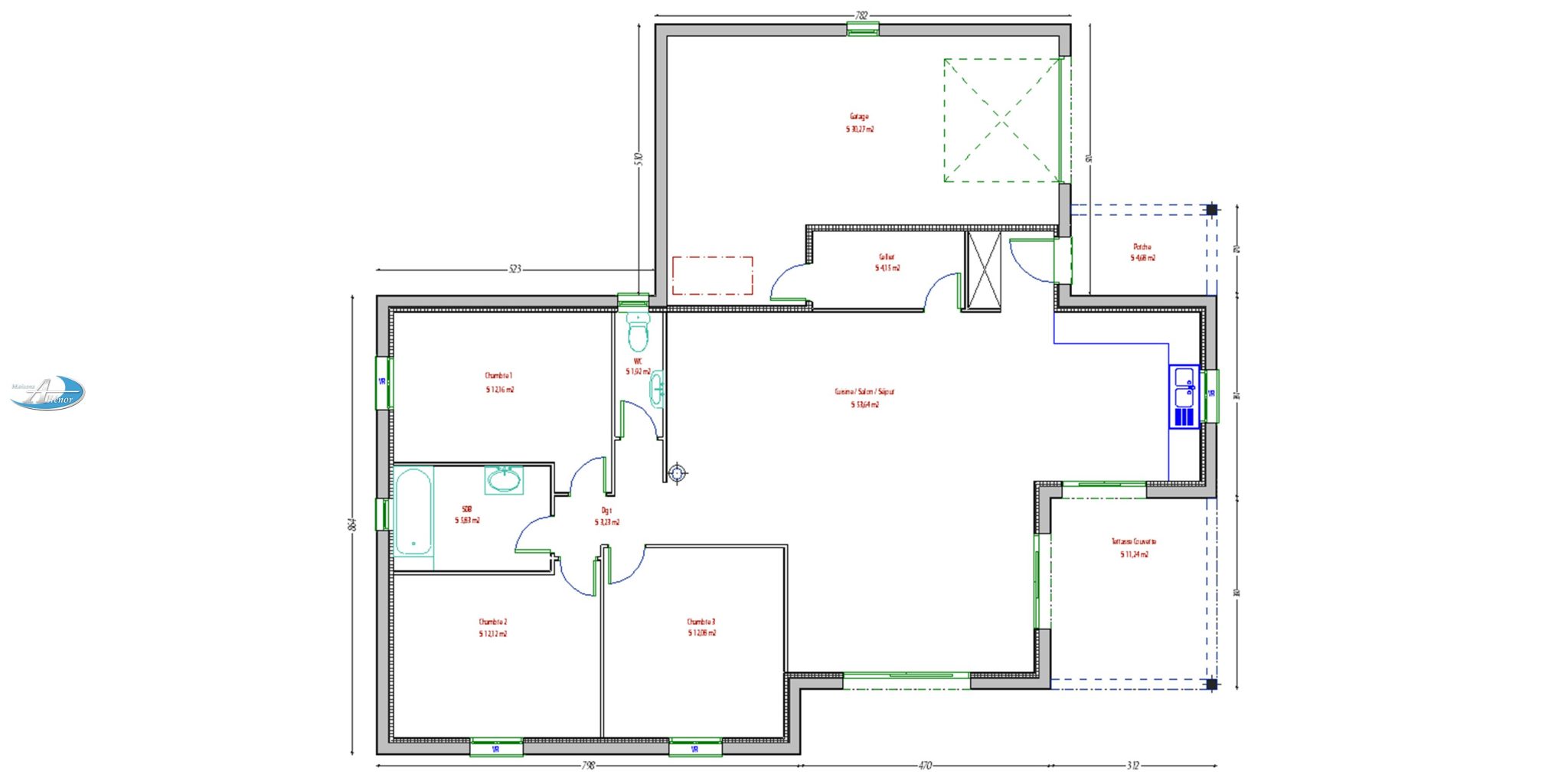
De la conception à la visualisation, nous transformons vos projets en rendus précis, réalistes et fonctionnels
Nous proposons une large gamme de matériels et matériaux de construction de qualité, adaptés à tous vos besoins : ciment, fer, briques, équipements de chantier, outillage professionnel, et plus encore.
Création de plans techniques précis adaptés à vos besoins et à vos contraintes architecturales.

Visualisation réaliste des projets grâce à des rendus 3D professionnels et immersifs.

Analyse structurelle et optimisation des conceptions pour plus d’efficacité et de sécurité.

Routes, réseaux, ouvrages hydrauliques : des réalisations au service du développement.



Identification du sol avant conception, reconnaissance des couches superficielles.




Années d'expérience dans le secteur de la construction

ITP SARL
ITP SARL (International des Travaux Publics) propose des services de haute qualité en architecture 2D/3D, construction, suivi des travaux et immobilier. L’entreprise vise à devenir innovante et performante, en misant sur la créativité et l’expertise pour gérer et réaliser tous les projets, de la conception des plans à la construction ou rénovation de bâtiments.
Nos clients nous confient leurs projets car nous combinons expertise technique, innovation et rigueur.
Nous innovons continuellement pour proposer des solutions adaptées aux besoins uniques de chaque client. Notre approche créative permet de transformer leurs idées en réalisations concrètes et durables.

ingénieurs expérimentés garantissent la qualité et la sécurité de tous vos projets, de la conception au suivi technique.

bâtiments réalisés à ce jour, preuve de notre expertise et de notre savoir-faire dans la construction durable.

clients satisfaits chaque année grâce à notre engagement pour des services fiables et personnalisés.

Grâce à notre sérieux et à la qualité de nos réalisations, nous avons bâti des partenariats durables qui témoignent de notre engagement à livrer des projets fiables et conformes aux plus hauts standards.










De plus en plus d'architectes d'intérieur se concentrent sur des pratiques de conception durables et respectueuses de l'environnement.
Contactez-nous au :
33 914 94 33 +221 78 451 26 56Envoyez-nous un e-mail:
contact@itp-international.com